
HD-toifa Yevropa Qopqog'i Elektr Elektr yagona Kalkulyator
European Single Girder Overhead Crane, ilg'or texnologiya va chiroyli dizayni bilan FEM va DIN standartlariga mos ravishda ishlab chiqilgan va ishlab chiqarilgan ixcham liftni ishlab chiqarmoqda. Odatiy va omborli materiallarga ishlov berishga, katta qismlarga aniq montajga va boshqa joylarga mos keladigan, Yevropa standartidagi elektr tokchasini ishlatishni qo'llab-quvvatlash uchun umumiy turdagi va ishlab chiqarish turiga bo'linadi.
HD-toifa Yevropa Qopqog'i Elektr Elektr yagona Kalkulyator
Qisqacha tavsifi:
European Single Girder Overhead Crane, ilg'or texnologiya va chiroyli dizayni bilan FEM va DIN standartlariga mos ravishda ishlab chiqilgan va ishlab chiqarilgan ixcham liftni ishlab chiqarmoqda. Odatiy va omborli materiallarga ishlov berishga, katta qismlarga aniq montajga va boshqa joylarga mos keladigan, Yevropa standartidagi elektr tokchasini ishlatishni qo'llab-quvvatlash uchun umumiy turdagi va ishlab chiqarish turiga bo'linadi.
U mashinasozlik, metallurgiya, neft, portlash, port, temir yo'l, fuqarolik aviatsiyasi, oziq-ovqat, qog'oz ishlab chiqarish, qurilish, elektron sanoat dastgohlari, omborxonalar va boshqa moddiy-texnik sharoitlarda, aniq joylashuvga muhtoj bo'lgan moddiy ishlov berish uchun qo'llaniladi, katta qismlarga aniq montaj holati.
Batafsil rasmlar:
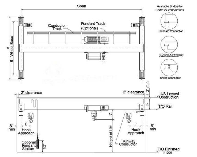
Sketchni chizish:
Texnik parametrlar:
Span | m | 7.5 | 10.5 | 13.5 | 16.5 | 19.5 | 22.5 | 25.5 |
Imkoniyatlar | t | 1 ~ 12.5t | ||||||
Umumiy og'irligi | kg | 1781 ~ 12086 | ||||||
Trolley og'irligi | kg | 405 ~ 740 | ||||||
Maks. G'ildirakli yuk | kn | 13,5 ~ 90,94 | ||||||
Sayohat temir yo'l | P24 ~ P43 | |||||||
Olib tashlash tezligi | m / min | 0.8 / 5 | 0.8 / 5 | 0.8 / 5 | 0.8 / 5 | 0.8 / 5 | 0.8 / 5 | 0.8 / 5 |
Olib tashlash balandligi | m | ≥ 6 | ≥ 6 | ≥ 6 | ≥ 6 | ≥ 6 | ≥ 6 | ≥ 6 |
Jami dvigatel kuchi | kv | 4.31 | 4.31 | 4.31 | 4.31 | 4.67 | 4.67 | 4.67 |
Vinç tezligi | m / min | 3-30 | 3-30 | 3-30 | 3-30 | 3-30 | 3-30 | 3-30 |
Trolley tezligi | m / min | 2-20 | 2-20 | 2-20 | 2-20 | 2-20 | 2-20 | 2-20 |
Mehnat burchagi | M5 / A5 |